Sainte-Euphrosine
Un nouveau et grand projet qui avait pour but de réorganiser et améliorer la circulation tout en gagnant de l’espace.
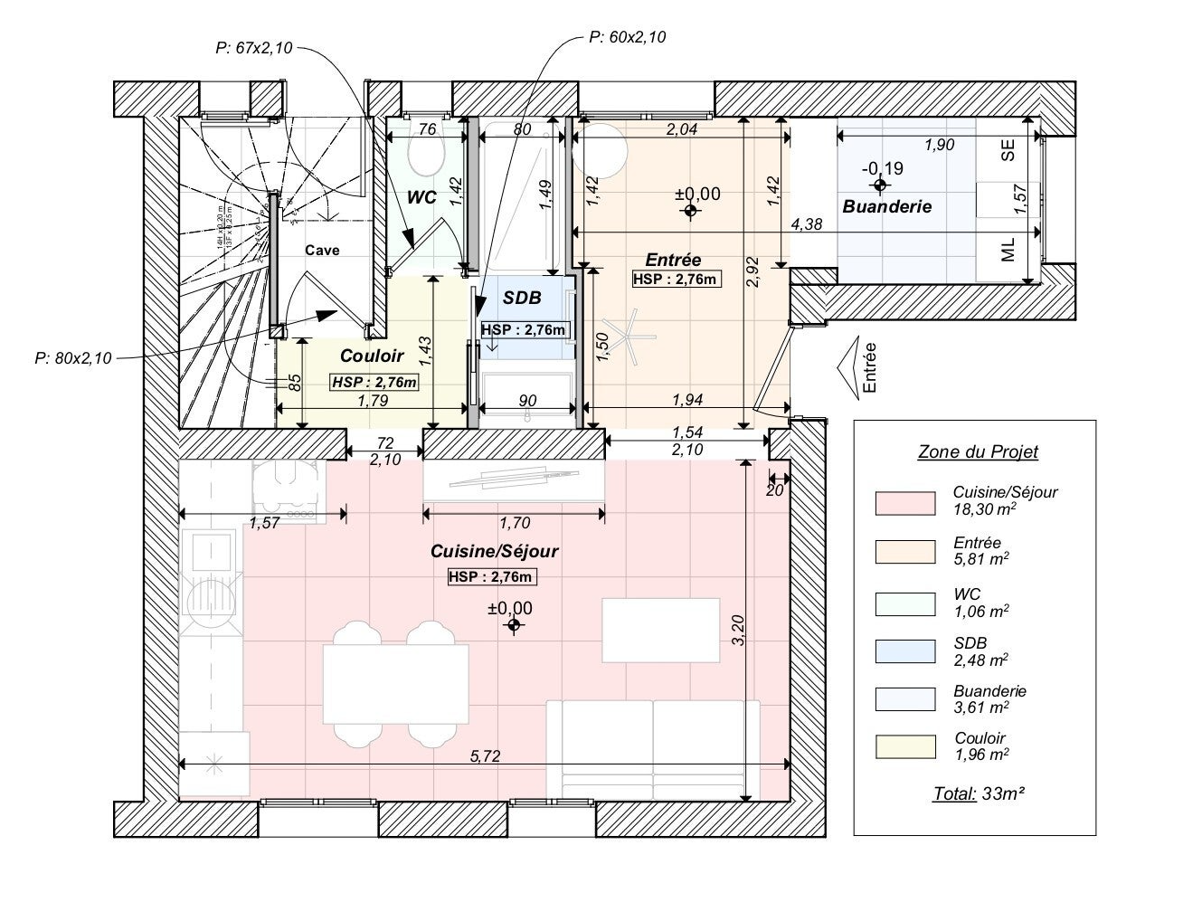
La Salle d’eau et la buanderie ont été interchangées et les WC ont pivoté. Ces modifications permettent de reprendre les arrivées d’eaux existantes. Ce nouvel agencement a permis de créer une véritable entrée, un couloir pouvant distribuer toutes les pièces avec l’accès à l’étage ainsi qu’un petit coin bureau souhaité par la cliente pour son télétravail.
L’idée du projet est de conserver au maximum le mobilier et de trouver des solutions afin de limiter le coût sur la partie déco (exemple: papier adhésif imitation bois, faïence aspect vieilli ...). Le plus important du budget est utilisé pour : la création des cloisons, la nouvelle salle d’eau avec mobilier et sa surélévation, le meuble/cloison sur mesure pour la partie TV d’un côté et placard d’entrée de l’autre et enfin la nouvelle ouverture entre le séjour et le couloir.
Conservation des meubles de cuisine, ajout d’une colonne pour le réfrigérateur, ainsi que des rangements sous plafond. La table à manger a été changée pour être modulable et pouvoir accueillir jusqu’à 10 personnes. Les chaises ont été conservées et habillées d’une housse.
Ma cliente souhaitait du jaune et du bleu pour retrouver une ambiance chaleureuse, moderne, qui puisse réveiller l’espace. Ces couleurs permettent également de rendre les lieux plus lumineux et d’allier l’ancien (les moulûres, la faïence) avec le moderne.
Avant...
Ambiance et matériaux
