Ferdinand Bac
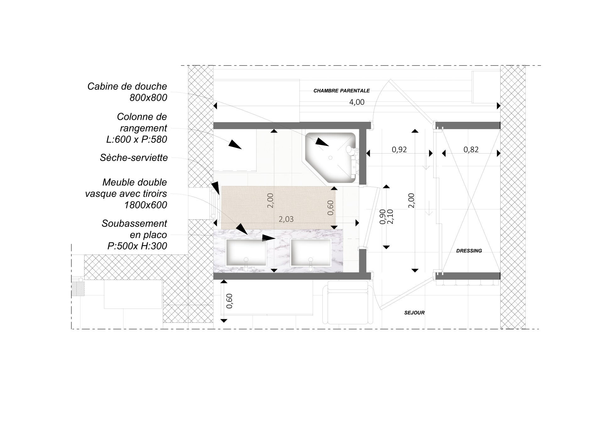
Cette salle de bain de suite parentale datant de 2005 avait besoin de retrouver de la modernité et de l’espace. La contrainte: conserver la faïence et le carrelage existant, ainsi que le sèche serviette.
Les clients souhaitaient gagner en espace et en luminosité dans cette pièce d’eau relativement petite.
La solution était de trouver un meuble double vasques moins profond afin de gagner en espace et une nouvelle douche peu large mais plus longue.
Les tons clairs sont représentés par les meubles: alliance du bois et du blanc. L’implantation des meubles n’a pas changé, simplement les dimensions et le design.
