Carnot
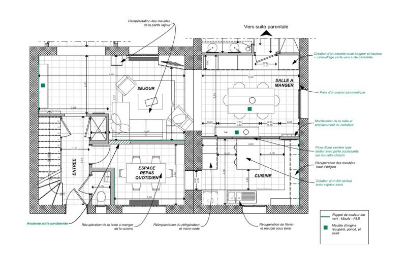
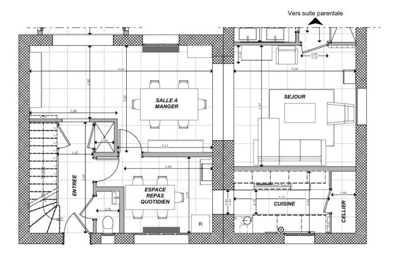
Un projet qui avait pour but de modifier l’implantation de la partie séjour et salle à manger mais également de redéfinir les accès à ces espaces depuis la cuisine. L’emplacement de la cuisine et l’espace repas quotidien ont été conservés. Quand à la partie séjour et salle à manger, ces dernières ont été inversées.
L’idée du projet: conserver au maximum le mobilier existant pour chaque pièce et les restaurer pour les remettre au goût du jour, afin de limiter le budget.
Remplacement de la cloison entre la cuisine et la nouvelle salle à manger, en verrière type atelier avec ouverture, pour plus de lumière et d'accessibilité. La porte existante entre l’espace repas et le nouveau séjour est condamnée afin de gagner de l’espace.
Création de rangements tout hauteur et en enfilade sur un pan de mur permettant l’optimisation des rangements et dissimuler l’accès à la suite parentale.
Conservation des meubles existants de cuisine et ajout de deux colonnes pour réfrigérateur et micro-onde. Cuisine légèrement agrandie avec la nouvelle cloison/verrière et suppression du cellier afin de permettre d’accueillir un îlot.
Mes clients souhaitaient conserver au maximum leur mobilier et les restaurer si nécessaire. La volonté également de rendre les espaces plus lumineux et modernes avec du blanc agrémenté d'une couleur pastel.
Avant...
Ambiance et matériaux
