Saint-Germain
Le projet consistait à rendre ce salon/salle à manger plus moderne et plus agréable. L’ambiance souhaitée : esprit loft avec des tons clairs. A la demande de la cliente, une couleur qui dénote : le rouge.
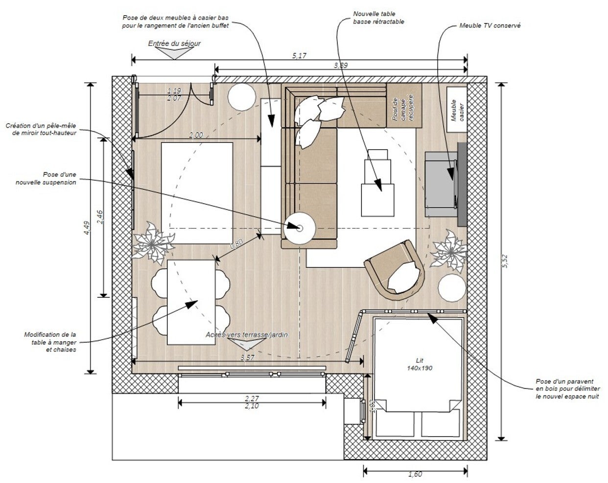
Les tons clairs sont représentés par les meubles. L’esprit loft est représenté par un pan de mur en papier imitation briques anciennes. La suspension et la teinte rouge accessoirisées par les coussins, bibelots et décoration.
Encore ici certains meubles ont été conservés pour limiter le budget (canapé, table à manger/chaises et meuble télé). Seules les étagères casiers ont été achetées pour remplacer cet immense buffet, trop imposant pour la pièce. Le meuble télé a été peint dans un ton gris clair.
Un espace réaménagé, un mur imitation brique, de nouveaux accessoires: une nouvelle pièce avec un petit budget.
