Roland Picard
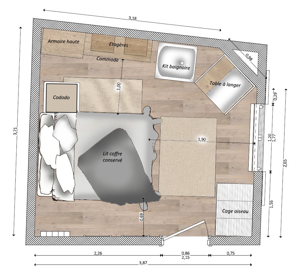
Le projet consiste à réadapter une chambre parentale pour l’arrivée d’un nouveau né. Il fallait pouvoir y installer un Cododo, un kit baignoire et évidemment une table à langer.
Les clients souhaitaient une ambiance cocooning, chaude et apaisante pour la venue du bébé. L’espace doit être fonctionnel, aéré et pratique. La surface de la chambre faisant tout de même 13m², cela nous permet d’amener le mobilier nécessaire pour le bébé, mais aussi de créer du rangement (penderie, commode). A la demande du client, nous avons pu conserver la cage à oiseau.
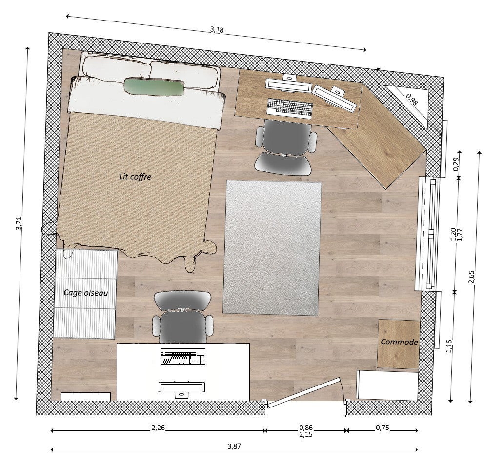
Le mobilier en bois clair et blanc permet d’adoucir, à la différence de la tête de lit dans les tons Terracotta qui réchauffe la pièce. Les éléments textiles comme les tapis et les rideaux permettent d’appuyer l’idée de chaleur et de cocooning.
Avant...
Ambiance et matériaux
